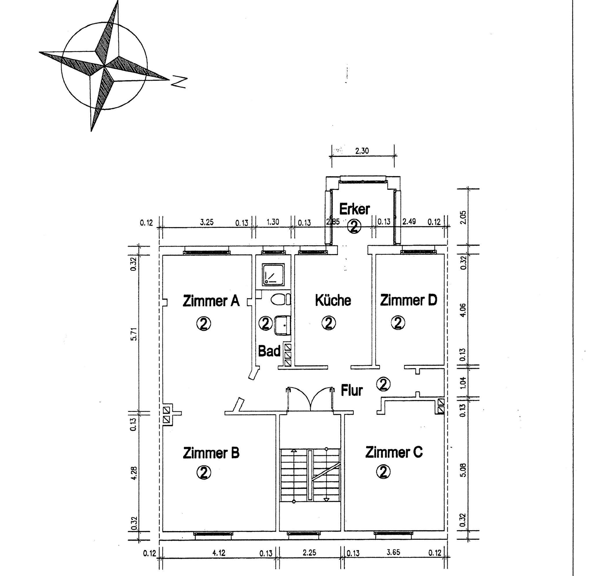
Tolle Altbaueigentumswohnung mit 4 Zimmern in ruhiger Lage von Osnabrück-Schölerberg



Die schöne Altbauwohnung befindet sich im 1. Obergeschoß eines ruhigen 3-Familienhauses. Die Wohnung ist

sehr gut und klassisch aufgeteilt und besteht aus 4 Zimmern, einer geräumigen Küche, einem typischen

Altbaubad mit Dusche, einem schönen Erkerraum. Weiterhin gehört ein großer Kellerraum zur Wohnung.

 

Die Obergeschoßeigentumswohnung liegt in guter und ruhiger Lage des begehrten und grünen Osnabrücker

Stadtteiles. Der Schölerberg und der Riedenbach befinden sich in unmittelbarer Nähe und laden zu

Spaziergängen in der Natur ein. Die Wohnung befindet sich inmitten einer Wohnsiedlung in einer wenig

befahrenen Straße, umgeben von schönen Einfamilien-/ und Mehrfamilienhäusern verschiedener Baujahre.

Schulen, Kindergärten, Ärzte sowie diverse Einkaufsmöglichkeiten befinden sich in unmittelbarer Nähe.

Zahlreiche Aktivitäten wie zum Beispiel Sport-/ Tennis-/ oder Fußballvereine sind ebenfalls schnell zu erreichen.

Das Stadtzentrum ist in unmittelbarer Nähe. Bushaltestellen befinden sich ebenfalls in direkter Umgebung. Die

Infrastruktur kann daher als sehr gut bezeichnet werden. Das Mehr-familienhaus besteht aus 3 schönen

Wohnungen. Das Haus steht auf einem Erbpachtgrundstück mit einem überschaubaren Erbpachtzins


Kaufpreis: 265.000,- € zzgl. 3 % Käufercourtage zzgl. gesetzlicher MwSt.